Tout l'immobilier au bord de l'eau en France

Trouvez votre bien
au bord de l'eau

Fermer
 

DROSAY (76460)
Bois Maison
Arrière pays
336 000 € F.A.I
Superficie habitable175 m²
Surface de terrain1 195 m²
Nombre de chambres3 chambre(s)

Réf. : 1250fr
vente maison bois drosay (76460).

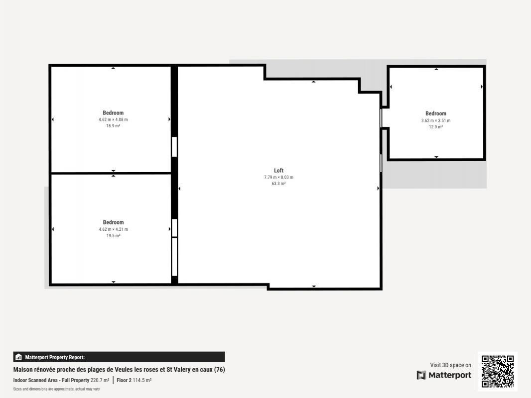
Au calme, dans village pittoresque à  moins de 10 mn de St Valery en caux (76) et 15 mn de Veules les roses, trés belle maison en bois entièrement rénovée et trés lumineuse comprenant au rez de chaussée entrée avec rangements, séjour cathédrale de 39 m2 avec poàªle à  bois, cuisine aménagée et équipée donnant sur terrasse extérieure, salle à  manger (ancienne chambre transformée), wc, salle de bains avec douche italienne. A l'étage trés belle mezzanine aménagée en bureau et coin détente donnant sur séjour, 3 chambres. Chalet en bois extérieur, . Jardin arboré de 1195 m2 . Maison coup de coeur. Maison avec trés bonne isolation thermique. Honoraires de 16.000 euros à  la charge de l'acquéreur et compris dans le prix soit 320.000 euros net vendeur.
Les informations sur les risques auxquels ce bien est exposé sont disponibles sur le site Géorisques : www. georisques. gouv. fr

Les informations sur les risques auxquels ce bien est exposé sont disponibles sur le site Géorisques : www.georisques.gouv.fr

Honoraires à la charge de l'acquéreur

Prix du bien hors honoraires : 320 000 €

Honoraires : 0.00 %

  • Terrasse
  • Jardin

Diagnostic de performance energetique (DPE)

C (131 Kwh/m²/an)

Localisation : DROSAY (76460)

Coordonnées de l'agence

AGENCE CAUX SEINE IMMOBILIER

1859 Route De Saint Valery 76450 PALUEL

Tél. : 02.35.97.28.89
Consulter toutes les annonces

Contacter l'agence

 
0
1
2
3
4
5
6
7
8
9

Toutes nos annonces immobilières à DROSAY