Notice: unserialize(): Error at offset 0 of 48 bytes in /var/www/1001rives.fr/index.php on line 183

Trouvez votre bien
au bord de l'eau

Fermer
× BERCK (62600)
 
Ajouter cette sélection
A louer MAISON  D'ARCHITECTE PLAGE à PIED BERCK
A louer MAISON  D'ARCHITECTE PLAGE à PIED BERCK
A louer MAISON  D'ARCHITECTE PLAGE à PIED BERCK
Voir plus de photos

BERCK (62600)
Architecte Maison
Bord de mer
315 000
Superficie habitable116 m²
Nombre de chambres3 chambre(s)

Réf. : 245138
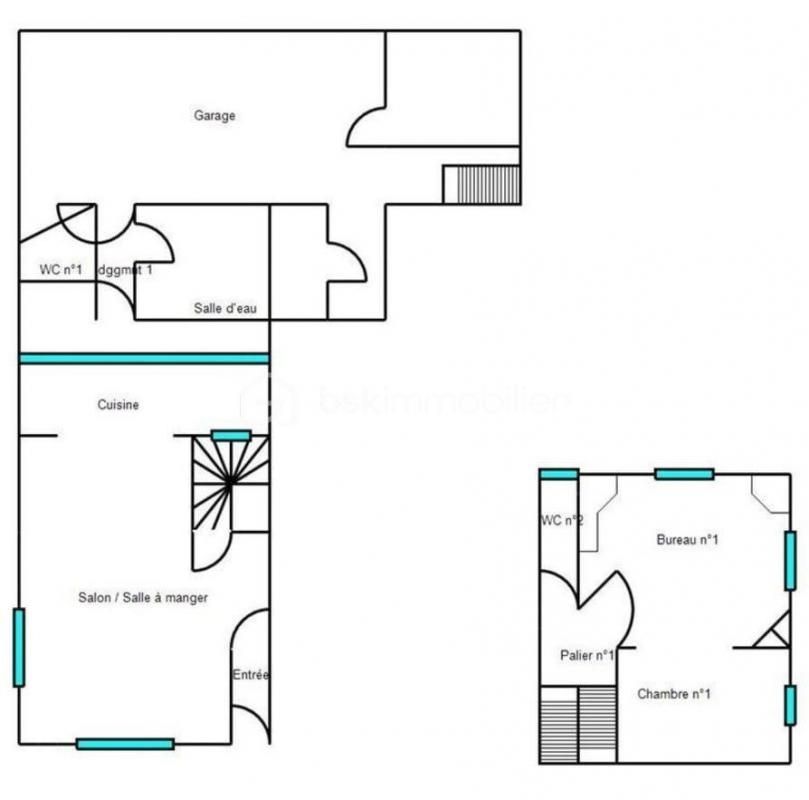
maison d'architecte plage à pied berck (62600).

Maison de 116 m², idéalement située à  300m de la plage et proche des commerces.

Elle se compose au rez de chaussée : entrée, séjour/salon avec un poàªle à  bois.
Une cuisine ouverte baignée de lumière. Une salle d'eau et un WC indépendant.

Au 1er étage : palier, deux chambres et un WC indépendant.

Au 2ème étages : palier, deux chambres et un bureau.

A l'étage supérieur, des combles aménageables.

Superbe parquet au sol aux différents étages.

Chauffage au gaz de ville. Une cave.

Le garage/hangar attenant possède une buanderie, un atelier, un pont hydraulique .. et peut accueillir un camping car.
Possibilité de transformer cet espace supplémentaire en lof !

Enfin, une terrasse exposée plein sud en rooftop de 51 m² complète ce bien.

Prix de vente : 315 000 €
Honoraires charge vendeur.

Les informations sur les risques auxquels ce bien est exposé sont disponibles sur le site Géorisques : www.georisques.gouv.fr

Cette annonce référence 245138 vous est présentée par votre agent commercial BSK Immobilier LAURIE DELBàˆQUE (EI) immatriculé au RSAC de BOULOGNE-SUR-MER (62200) sous le numéro 90781856100017.

Prix du bien : 315 000,00 €
Les honoraires d'agence sont à  la charge du vendeur.

A propos des performances énergétiques :
Date de réalisation du diagnostic énergétique : 01/05/2025
Score DPE : 225 kWhEP/m²/an
Score GES : 36 kgepCO2/m²/an
Montant estimé des dépenses annuelles d'énergie pour un usage standard : entre 2000.00 € et 2706.00 € par an. Prix moyens des énergies indexés sur l'année 2023 (abonnements compris).

Les informations sur les risques auxquels ce bien est exposé sont disponibles sur le site Géorisques : www.georisques.gouv.fr
  • Terrasse
  • Garage

Localisation : BERCK (62600)

Coordonnées de l'agence

BSK IMMOBILIER

12 RUE LOUIS COURTOIS DE VICOSE BAT 3 CS 54787 31000 TOULOUSE

Tél. : 05 61 00 27 26
Consulter toutes les annonces

Contacter l'agence

 
0
1
2
3
4
5
6
7

Toutes nos annonces immobilières à BERCK