Trouvez votre bien
au bord de l'eau

Fermer
× HENIN BEAUMONT (62110)
Ajouter cette sélection
A louer APPARTEMENT T3 73 M2 TERRASSE  MONTPELLIER
A louer APPARTEMENT T3 73 M2 TERRASSE  MONTPELLIER
A louer APPARTEMENT T3 73 M2 TERRASSE  MONTPELLIER
Voir plus de photos

MONTPELLIER (34080)
Appartement T3
Arrière pays
189 000
Superficie habitable73 m²
Nombre de chambres2 chambre(s)

Réf. : 299176
appartement t3 73 m2 terrasse montpellier (34080).

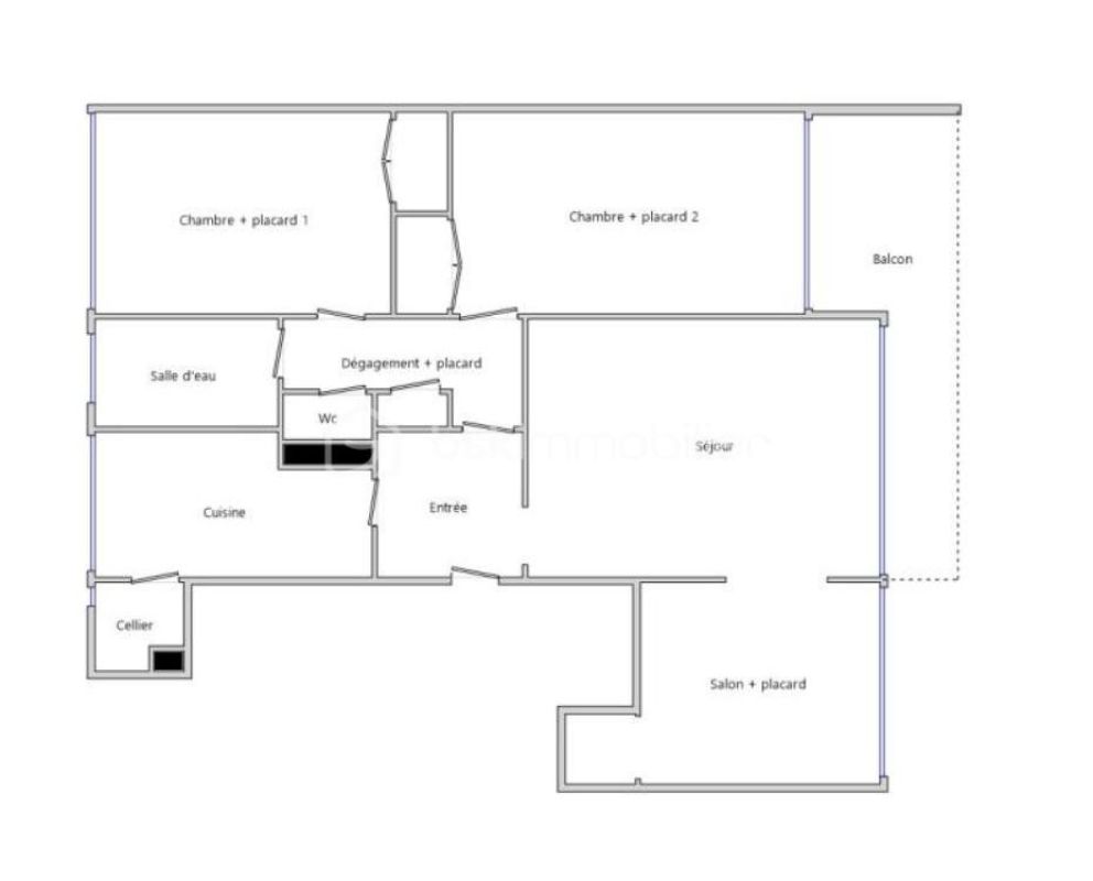
C'est tout nouveau, et en exclusivité ! Nous l'avons trouvé pour vous, votre futur appartement se situe rue des Eucalyptus à  Pere Soulas, Montpellier Alco, au deuxième étage avec ascenseur, d'une résidence calme, sécurisée et bien entretenue. Il est traversant et se compose comme suit :
Une entrée et un dégagement avec placard.
Un double séjour lumineux totalisant 27m2 environ, offre un bel espace de vie convivial.
Une cuisine avec cellier.
Deux chambres spacieuses de 12m2 et 14 m2 environ, avec placards, dont une donnant sur la terrasse.
Une salle d'eau confortable et moderne.
Des wc séparés.
Une agréable terrasse de 10m2 sur la longueur, parfaite pour profiter des beaux jours.
Pour parfaire cette offre l'appartement possède une cave, un garage fermé ainsi qu'une place de parking privative.
Pour + de confort : L'immeuble a bénéficié de travaux d'isolation par l'extérieur, l'eau chaude, l'eau froide et le chauffage sont inclus dans les charges, double vitrage de qualité, bonne exposition, proximité des commerces et des transports.
à€ visiter sans tarder !
Chers clients je suis disponible 7/7 pour une visite, je vous invite à  privilégier les appels téléphoniques. Chers collaborateurs je suis ouverte à  l'inter-agence.

Cette annonce référence 299176 vous est présentée par votre agent commercial BSK Immobilier MELODY FAVRE (EI) immatriculé au RSAC de MONTPELLIER (34070) sous le numéro 82806032700016.

Prix du bien : 189 000,00 €
Les honoraires d'agence sont à  la charge du vendeur.

A propos de la copropriété :
Pas de procédure en cours.
Nombre de lots : 190
Charges prévisionnelles annuelles : 2 000,00 €

A propos des performances énergétiques :
Date de réalisation du diagnostic énergétique : 05/08/2025
Score DPE : 136 kWhEP/m²/an
Score GES : 29 kgepCO2/m²/an
Montant estimé des dépenses annuelles d'énergie pour un usage standard : entre 790.00 € et 1120.00 € par an. Prix moyens des énergies indexés sur l'année 2024 (abonnements compris).

Les informations sur les risques auxquels ce bien est exposé sont disponibles sur le site Géorisques : www.georisques.gouv.fr
  • Terrasse
  • Placard
  • Garage
  • Parking
  • Ascenseur

Localisation : MONTPELLIER (34080)

Coordonnées de l'agence

BSK IMMOBILIER

12 RUE LOUIS COURTOIS DE VICOSE BAT 3 CS 54787 31000 TOULOUSE

Tél. : 05 61 00 27 26
Consulter toutes les annonces

Contacter l'agence

 
0
1
2
3
4
5
6
7
8
9