Trouvez votre bien
au bord de l'eau

Fermer
 

NICE (06100)
Appartement T2
Bord de mer
273 000
Superficie habitable58 m²
Nombre de chambres1 chambre(s)

Réf. : 292428
appartement t2 58 m2 bord de mer nice (06100).

NICE – Quartier des Poètes / Paul Bounin.
Beau 2 pièces de 58 m² – Calme – Idéal investissement ou résidence principale

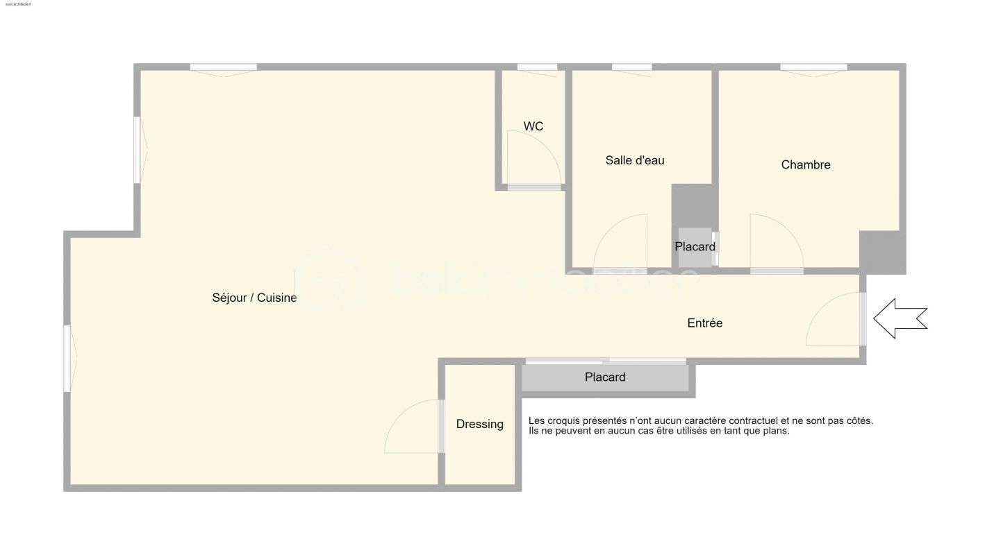
Situé dans le quartier très recherché des Poètes, à  deux pas du tramway et de toutes les commodités, ce spacieux 2 pièces de 58 m² se trouve en rez-de-chaussée d'une copropriété bien tenue.

L'entrée dessert :
Une chambre au calme sur cour.
Une salle de douche fonctionnelle avec coin buanderie,
Un WC séparé avec lave main.
Un grand placard de rangement dans le couloir,
Ainsi qu'une pièce supplémentaire aménagée en dressing, idéale pour optimiser l'espace.

Cà´té vie à  vivre :
Une cuisine ouverte moderne, entièrement aménagée et équipée, donnant sur un salon confortable et lumineux.
Pas de balcon, mais un environnement calme et verdoyant, et sans vis à  vis, très agréable au quotidien.

Le double vitrage, le chauffage collectif; le bon état général de l'appartement, et sa localisation privilégiée en font un bien attractif pour une résidence principale ou un investissement locatif.

Points forts :
Quartier prisé, proche tramway
Location saisonnière autorisée en copropriété
DPE : E (dà» au rez-de-chaussée mais pas de déperdition thermique excessive, logement sain)
Aucun travaux à  prévoir.
Pour les visites : 06.08.60.23.01

Cette annonce référence 292428 vous est présentée par votre agent commercial BSK Immobilier SYLVAIN AUMARD (EI) immatriculé au RSAC de NICE (06000) sous le numéro 42113586400021.

Prix du bien : 273 000,00 €
Les honoraires d'agence sont à  la charge du vendeur.

A propos de la copropriété :
Pas de procédure en cours.
Nombre de lots : 32
Charges prévisionnelles annuelles : 2 640,00 €

A propos des performances énergétiques :
Date de réalisation du diagnostic énergétique : 11/06/2025
Score DPE : 252 kWhEP/m²/an
Score GES : 41 kgepCO2/m²/an
Montant estimé des dépenses annuelles d'énergie pour un usage standard : entre 1230.00 € et 1664.00 € par an. Prix moyens des énergies indexés sur l'année 2024 (abonnements compris).

Les informations sur les risques auxquels ce bien est exposé sont disponibles sur le site Géorisques : www.georisques.gouv.fr
  • Balcon
  • Placard

Localisation : NICE (06100)

Coordonnées de l'agence

BSK IMMOBILIER

12 RUE LOUIS COURTOIS DE VICOSE BAT 3 CS 54787 31000 TOULOUSE

Tél. : 05 61 00 27 26
Consulter toutes les annonces

Contacter l'agence

 
0
1
2
3
4
5
6
7
8
9

Toutes nos annonces immobilières à NICE