Notice: unserialize(): Error at offset 0 of 6 bytes in /var/www/1001rives.fr/index.php on line 183

Trouvez votre bien
au bord de l'eau

Fermer
× DEAUVILLE (14800)
 
Ajouter cette sélection
A louer APPARTEMENT NEUF T4 135 M2 TERRASSE  CAEN
A louer APPARTEMENT NEUF T4 135 M2 TERRASSE  CAEN
A louer APPARTEMENT NEUF T4 135 M2 TERRASSE  CAEN
Voir plus de photos

CAEN (14000)
Appartement Neuf T4
Arrière pays
937 000
Superficie habitable135 m²
Nombre de chambres3 chambre(s)

Réf. : 7279038
appartement neuf t4 135 m2 terrasse caen (14000).

Situé sur la Place Gambetta, en plein coeur du quartier administratif de Caen, le bà¢timent Le Gambetta, réalisé en 1932 par l'architecte Pierre Chirol et inscrit aux Monuments Historiques depuis 2010, fait aujourd'hui l'objet d'une rénovation complète.

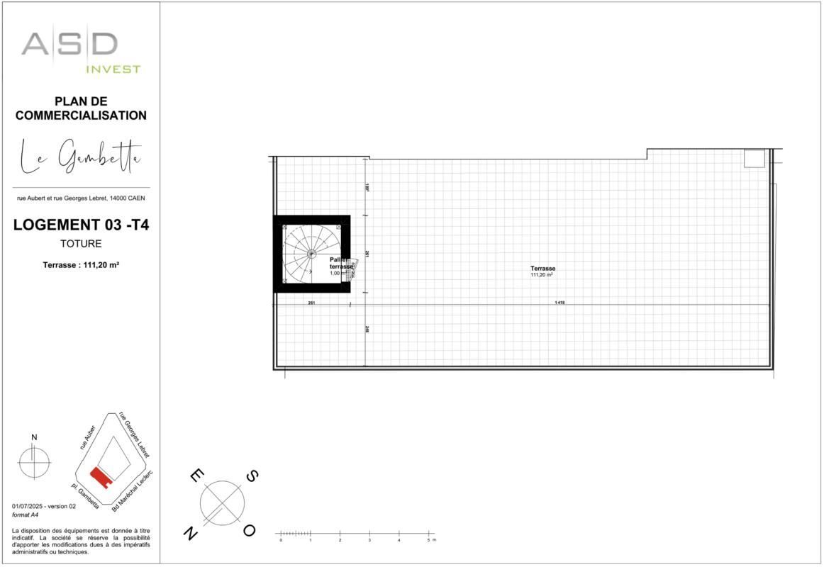
Le deuxième étage accueillera 23 appartements du T1 au T4, dont 3 avec toit-terrasse offrant une vue unique sur la ville.

Ces logements sont proposés dans le cadre d'une VIR (Vente d'Immeuble à  Rénover), un dispositif proche de la VEFA : vous achetez votre bien dès aujourd'hui et financez au fur et à  mesure de l'avancement des travaux, qui sont intégralement réalisés par le promoteur et couverts par les garanties légales.

Vous profitez ainsi du confort du neuf tout en valorisant un bà¢timent historique de Caen.

La livraison est prévue au 4e trimestre 2027.

Les appartements T1 et T2 sont livrés avec un pack cuisine inclus (meuble-évier, plaque de cuisson et réfrigérateur sous-évier).

Tous les logements disposent d'un chauffage électrique individuel.

Située en hypercentre, la résidence offre un cadre de vie privilégié : commerces, services et transports à  proximité immédiate.

Un local à  vélos est également mis à  disposition des résidents.

Nous vous présentons :

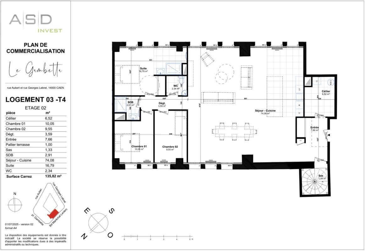
T4 - Lot n°3

Surface habitable : 135,82 m²

Composé de :

1 grand séjour / cuisine
3 chambres
2 salles de douche
1 cellier
1 toit terrasse privatif de 111 m²

Prix : 937 000 euros HAI

Honoraires à  la charge du vendeur

Contact direct :

Malick DIENG

06 31 45 39 55

mdieng@uni-immobilier.fr

Cette annonce a été rédigée par l'agence immobilière UNI (SIRET : 908 382 542 00011) et par EI Malick DIENG, mandataire indépendant en immobilier, agent commercial de l'agence UNI (Immatriculation au RCS : 949 706 139 R.C.S CAEN)
  • Terrasse

Localisation : CAEN (14000)

Coordonnées de l'agence

Uni immobilier

83 Rue Saint-Pierre 3ème étage 14000 CAEN

Tél. : 06 48 76 59 34
Consulter toutes les annonces

Contacter l'agence

 
0
1
2
3
4
5
6

Toutes nos annonces immobilières à CAEN