Trouvez votre bien
au bord de l'eau

Fermer
Ajouter cette sélection
A louer APPARTEMENT NEUF T2 48 M2 BORD DE MER NICE
A louer APPARTEMENT NEUF T2 48 M2 BORD DE MER NICE
A louer APPARTEMENT NEUF T2 48 M2 BORD DE MER NICE
Voir plus de photos

NICE (06000)
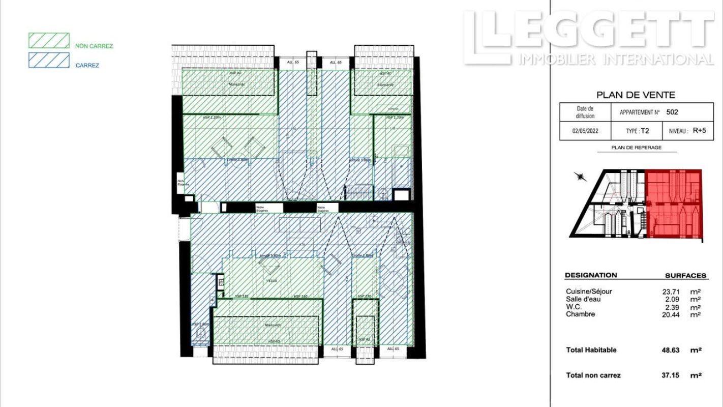
Appartement Dernier Etage Neuf T2
Bord de mer
295 000
Superficie habitable48 m²
Nombre de chambres1 chambre(s)

Réf. : UF-A16442
appartement neuf t2 48 m2 bord de mer nice (06000).

A16442 - Nice Centre - A 100m de la Coulée Verte, proche Vieux Nice et Plages. Complète réhabilitation d'un Palais Belle Epoque. En dernier étage, avec ascenseur, d'une surface de 48m2 habitable, un appartement 2 pièces : entrée, séjour, 1 chambre, cuisine équipée, salle de bains, wc, rangements. Parfait pour pied à  terre ou investissement locatif.
Livraison 2nd trimestre 2023.

Les informations sur les risques auxquels ce bien est exposé sont disponibles sur le site Géorisques : https://www.georisques.gouv.fr
  • Ascenseur

Localisation : NICE (06000)

Coordonnées de l'agence

LEGGETT IMMOBILIER

42 Route de Ribérac 24340 ROCHEBEAUCOURT ET ARGEN

Tél. : 05 53 56 62 54
Consulter toutes les annonces

Contacter l'agence

 
0
1
2
3
4
5
6
7
8
9