Notice: unserialize(): Error at offset 0 of 41 bytes in /var/www/1001rives.fr/index.php on line 183

Trouvez votre bien
au bord de l'eau

Fermer
× SAINTE LUCIE DE PORTO VECCHIO (20144)
 
Ajouter cette sélection
A louer APPARTEMENT DUPLEX DE PRESTIGE T5 111 M2 TERRASSE BORD DE MER ANTIBES
A louer APPARTEMENT DUPLEX DE PRESTIGE T5 111 M2 TERRASSE BORD DE MER ANTIBES
A louer APPARTEMENT DUPLEX DE PRESTIGE T5 111 M2 TERRASSE BORD DE MER ANTIBES
Voir plus de photos

ANTIBES (06600)
Appartement Duplex Prestige Prestige T5
Bord de mer
900 000
Superficie habitable111 m²
Nombre de chambres3 chambre(s)

Réf. : UF-A19456SIM06
appartement duplex de prestige t5 111 m2 terrasse bord de mer antibes (06600).

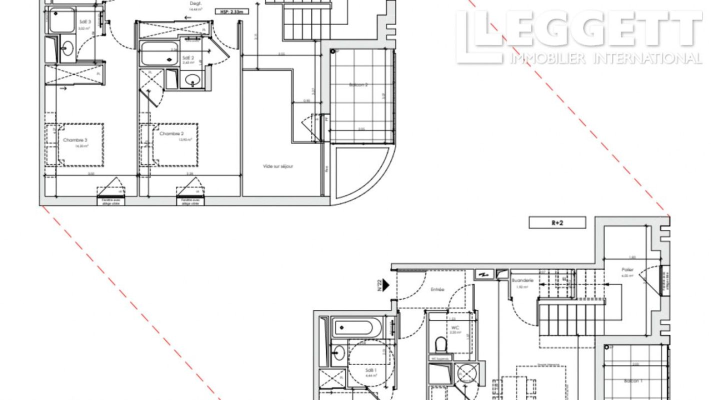
A19456SIM06 - Cet appartement, achevé fin 2024, offre une vie moderne et luxueuse sur deux étages avec 3 chambres, 3 salles de bains, deux espaces de vie et 2 balcons avec vue sur la mer et double parking.

Cette petite résidence se compose de trois étages, l'appartement se trouvant sur les deux derniers niveaux avec un escalier entre les deux.

Idéalement située à  quelques pas du port d'Antibes, cette résidence ne compte que 10 appartements de standing.
Les espaces de vie sont lumineux et bien agencés, prolongés par des terrasses ou des jardins pour profiter des journées ensoleillées et de la douceur du climat méditerranéen.

Prix de l'appartement 849,000€
Garage double 60,000€
Total 909,000€

Les informations sur les risques auxquels ce bien est exposé sont disponibles sur le site Géorisques : https://www.georisques.gouv.fr
  • Terrasse
  • Jardin
  • Balcon
  • Garage
  • Parking

Localisation : ANTIBES (06600)

Coordonnées de l'agence

LEGGETT IMMOBILIER

42 Route de Ribérac 24340 ROCHEBEAUCOURT ET ARGEN

Tél. : 05 53 56 62 54
Consulter toutes les annonces

Contacter l'agence

 
0
1
2
3
4
5
6
7
8
9

Toutes nos annonces immobilières à ANTIBES