Trouvez votre bien
au bord de l'eau

Fermer
 
Ajouter cette sélection
A louer APPARTEMENT DE PRESTIGE T4 90 M2 TERRASSE BORD DE MER NICE
A louer APPARTEMENT DE PRESTIGE T4 90 M2 TERRASSE BORD DE MER NICE
A louer APPARTEMENT DE PRESTIGE T4 90 M2 TERRASSE BORD DE MER NICE
Voir plus de photos

NICE (06100)
Appartement Prestige Prestige T4
Bord de mer
425 000
Superficie habitable90 m²
Nombre de chambres3 chambre(s)

Réf. : 48256
appartement de prestige t4 90 m2 terrasse bord de mer nice (06100).

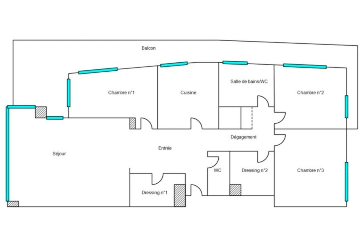
4 pièces d'angle avec vaste terrasse de 26m2 et parking idéalement situé au sein d'une copropriété de très bon standing parfaitement entretenue. Cet appartement climatisé de 90,01 m² offre une belle luminosité grà¢ce à  sa triple exposition et à  ses grandes ouvertures en double vitrage. Séjour généreux ouvrant sur une large terrasse de 26 m² en angle sud ouest, cuisine indépendante, 3 chambres, salle de bains, 2 WC et dressing, le tout parfaitement entretenu, Un emplacement de parking intérieur et une cave complètent ce lot. Environnement et commodités : transports (bus, tram), commerces, école primaire et université à  proximité immédiate, ainsi qu'un accès rapide à  la sortie d'autoroute. Fibre installée. Aucun travaux à  prévoir.

Les informations sur les risques auxquels ce bien est exposé sont disponibles sur le site Géorisques : www.georisques.gouv.fr
  • Terrasse
  • Parking

Localisation : NICE (06100)

Coordonnées de l'agence

Cabinet Borne & Delaunay

4 bis PLACE MASSENA 06000 NICE

Tél. : 04 93 62 25 35
Consulter toutes les annonces

Contacter l'agence

 
0
1
2
3
4
5
6
7
8
9

Toutes nos annonces immobilières à NICE