Tout l'immobilier au bord de l'eau en France

Trouvez votre bien
au bord de l'eau

Fermer
 
Ajouter cette sélection
Voir plus de photos

SANARY SUR MER (83110)
Contemporaine Maison Villa
Bord de mer
815 000 € F.A.I
Superficie habitable117 m²
Surface de terrain473 m²
Nombre de chambres3 chambre(s)

Réf. : HOMEGERBILLE-SAJATIM
.

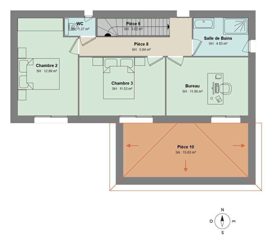
SANARY-SUR-MER ? Quartier tr?s recherch? de BeaucoursProjet de villa T5 de 117 m? ? Terrain de 473 m? ? ? deux pas de la merDans le secteur pris? de Beaucours, ? seulement quelques pas de la mer et 300 m des commerces, d?couvrez ce projet de villa T5 de 117 m?, id?alement implant? sur un terrain calme de 473 m?, piscinable.Un projet moderne et personnalisableLa villa se compose :D'un spacieux s?jour / cuisine de 45 m?, ouvert sur une belle terrasseD'une suite parentale de plain-pied avec salle d'eau et wc? l'?tage :2 chambres et un bureau (ou 3 chambres selon vos besoins)Une salle d'eauwc ind?pendantsPrestations pr?vuesClimatisation r?versibleChauffe-eau thermodynamiqueTerrain piscinableEnvironnement calme et r?sidentiel(le budget indiqu? ne comprend pas la piscine)Informations compl?mentaires , norme RT2020Le prix comprend les VRD et les viabilit?s, sous r?serve de validation apr?s ?tude technique, devis de terrassement et ajustement selon les contraintes du terrain.Une opportunit? rare de construire votre villa sur-mesure dans l'un des quartiers les plus recherch?s de Sanary-sur-Mer, entre mer et commodit?s.? Contactez-nous pour ?tudier votre projet !0672218944 ou 0616125588Non soumis au DPE. Les informations sur les risques auxquels ce bien est expos? sont disponibles sur le site G?orisques : georisques.gouv.fr.

Les informations sur les risques auxquels ce bien est exposé sont disponibles sur le site Géorisques : www.georisques.gouv.fr

Honoraires à la charge de l'acquéreur

Prix du bien hors honoraires : 815 000 €

Honoraires : 0.00 %

  • Piscine
  • Terrasse
  • Climatisation

Warning: Trying to access array offset on value of type null in /var/www/1001rives.fr/inc/detail-bien.php on line 250

Diagnostic de performance energetique (DPE) non communiqué

DPE : Non communiqué

Localisation : SANARY SUR MER (83110)

Coordonnées de l'agence

AGENCES PRIVEES (SAJATIM)

424 rue de Lisbonne Coralia A 83500 LA SEYNE SUR MER

Tél. : 04 94 64 00 48
Consulter toutes les annonces

Contacter l'agence

 
0
1
2
3
4

Toutes nos annonces immobilières à SANARY SUR MER